G67 Schwarzplan Header

2016 | Wohnen

Überbauung Langäcker | Wettingen

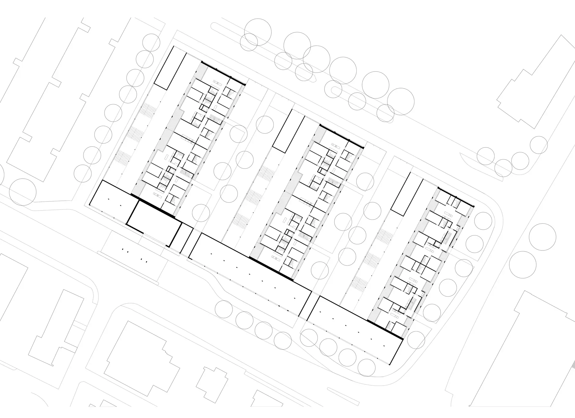
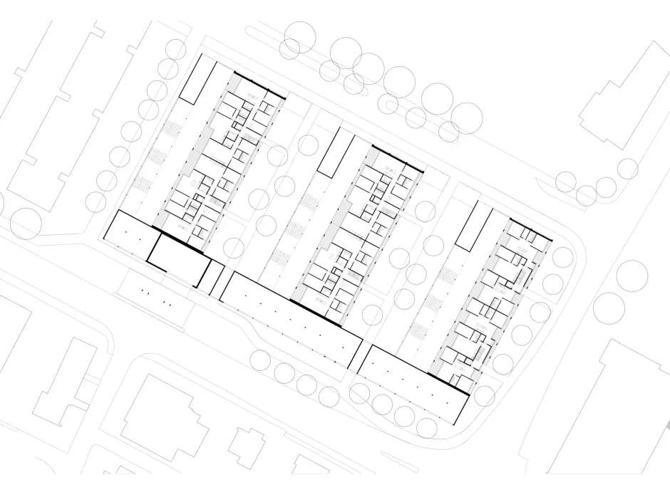
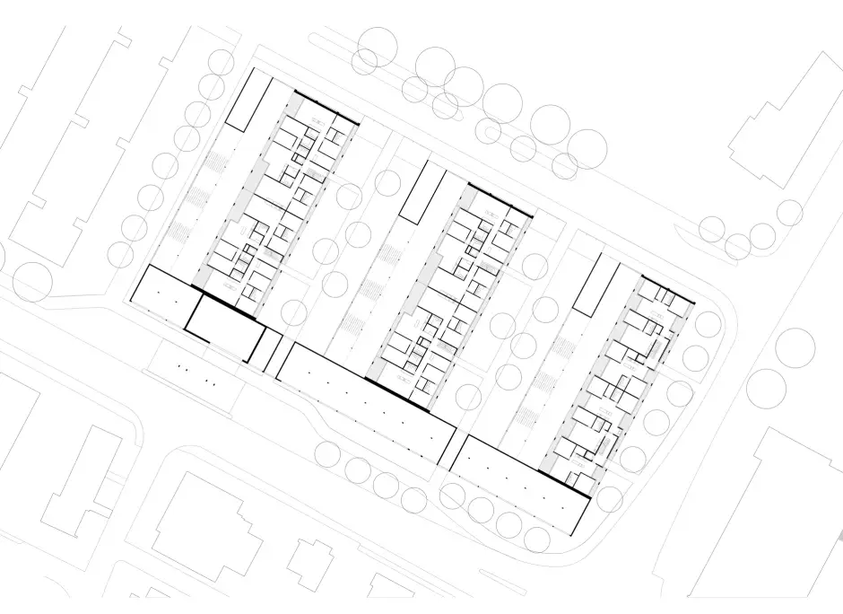
Drei senkrecht zur Strasse stehende Baukörper mit 6 Geschossen übernehmen die Bebauungsstruktur der westlich angrenzenden Bauten. Ein parallel zur Strasse angeordneter, eingeschossiger Baukörper mit den Gewerbenutzungen bildet das Gesicht der Überbauung und bindet einen bestehenden Tankstellenshop in die Gesamtfigur ein.
Die drei Wohn-Baukörper sind durchgängig als 3-Spännertypen mit einer klassischen Ost-/Westorientierung geplant, wobei die Schlafzimmer mehrheitlich nach Osten und die Wohnzimmer nach Westen orientiert sind.
Das Fassadenkonzept sieht sowohl auf der Ostseite als auch auf der Westseite eine durchgängige unterschiedlich tiefe Loggiaschicht in dunkel lasiertem Sichtbeton vor, die attraktive Aufenthaltsbereiche schafft. Zudem erhält die Überbauung ein attraktives, identitätsstiftendes Aussehen.

Impressionen
Pläne
Kenndaten
G67 Visualisierung Aussen Kreuzung
G67 HP Schwarzplan
G67 HP Grundriss Erdgeschoss
G67 HP Grundriss Obergeschoss
G67 HP Grundriss Regelgeschoss
G67 HP Grundriss Untergeschoss
G67 HP Schnitt
G67 HP Fassade Süd
G67 HP Fassade West

Alle Pläne anzeigen

Typ

Wohnen

Ort

Wettingen

Auftraggeber

Privat

Gebäudevolumen

52'549 m³

Hauptnutzfläche

11'108 m²

Kopiert!