I15 Visualisierung Aussen

2025 | Wohnen

Überbauung im Sandacher | Oberglatt

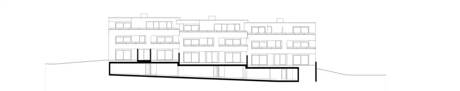
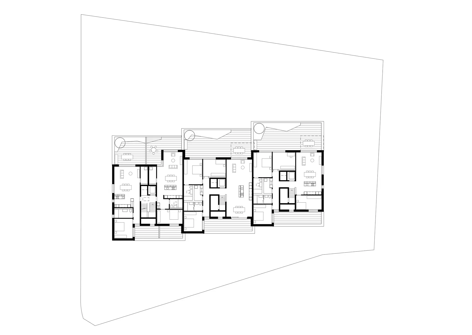
Der Perimeter liegt an der Schnittstelle zwischen einem Einfamilienhausquartier und Schulhausbauten, resp. einer Schreinerei. Das Volumen orientiert sich bezüglich der Grösse an der gegenüberliegenden Schreinerei, sowie den im Norden gelegenen Schulhausbauten. Das Gebäudevolumen ist entsprechend der Topografie des Grundstücks in drei Teile abgestuft und auch im Grundriss leicht zueinander versetzt, um die Gebäudelänge zu brechen. Das Untergeschoss wird ostseitig für Wohnnutzungen freigelegt. Zwei Vollgeschosse, sowie ein Attikageschoss vervollständigen das Volumen. 

Die äussere Gestaltung der Baute ist geprägt durch die horizontale Gliederung mit umlaufenden Geschossbändern, sowie geschosshohen Verglasungen und grosszügigen Balkonen. Die geschlossenen Wandpartien werden mit einer hinterlüfteten Fassade in Holz verkleidet.

Eine Ein- und Ausfahrt zur Einstellhalle erfolgt ab der Gemeindestrasse Im Sandacher. In der Einstellhalle liegt teilweise und dem Wohngebäude und teilweise und den Privaten Gartenanlagen. Die Erschliessung der drei Gebäudeteile erfolgt jeweils ostseitig im Untergeschoss. 

Impressionen
Pläne
Kenndaten
I15 Visualisierung Aussen Spielplatz
I15 Visualisierung Aussen Parkplatz
I15 HP Schwarzplan
I15 HP Grundriss Sockelgeschoss
I15 HP Grundriss Erdgeschoss
I15 HP Grundriss Obergeschoss
I15 HP Grundriss Attika
I15 HP Grundriss Untergeschoss
I15 HP Querschnitt
I15 HP Längsschnitt
I15 HP Fassade Nord
I15 HP Fassade Ost
I15 HP Fassade Süd
I15 HP Fassade West

Alle Pläne anzeigen

Typ

Wohnen

Ort

Oberglatt

Auftraggeber

Markstein AG

Gebäudevolumen

12'632 m³

Haupnutzfläche

2'063 m²

Kopiert!