H37 Foto Aussen REFH Einfahrt Frontal Header

2024 | Wohnen

Überbauung im Obstgarten | Rupperswil

Das Grundstück grenzt an eine Quartierstrasse und einen in der Landwirtschaftszone liegenden Obstgarten. Sechs Reiheneinfamilienhäuser zur Strasse und ein Mehrfamilienhaus fassen einen hofartigen, gemeinschaftlichen Spiel- und Aufenthaltsbereich.

Die Erschliessung der Reiheneinfamilienhäuser erfolgt direkt von der Strasse in ein Sockelgeschoss. Darüber liegen das Wohngeschoss und zuoberst die Schlafzimmer. Die privaten Gärten sind zum Nachbarhaus hin dank eines gedeckten Sitzplatzbereichs mit Aussenreduit vor Einblicken geschützt und erhalten so den Charakter von Gartenhöfen.

Die Wohnungen des Mehrfamilienhauses, welche über die vier zweispännigen Treppenhäuser zugänglich sind, sind als Durchwohner konzipiert, so dass jede Wohnung im Wohn- und Essbereich sowohl einen Bezug zum Hof als auch zum Obstgarten hat.

Die Fassaden des Mehrfamilienhauses sind geprägt vom Spiel der vertikalen Wandscheiben in rotem Sichtmauerwerk und dazwischenliegenden raumhohen Fenstern, die durch horizontale Bänder auf Höhe der Geschossdecken respektive der Loggien gegliedert sind. Das Attikageschoss ist allseitig zurückversetzt und mit ebenfalls roten Dachziegeln verkleidet. Die Reiheneinfamilienhäuser sind über dem in Massivbauweise ausgeführten Sockelgeschoss in Holzelementbauweise konstruiert mit einer rot gestrichenen Holzschalung. Die Farbe der gesamten Überbauung ist eine Referenz an das ursprüngliche Bauernhaus mit seiner roten Holzfassade.

Impressionen
Pläne
Kenndaten
H37 Foto Aussen Einfahrt Obst Sichtbeton 02
H37 Foto Aussen Einfahrt Obst Sichtbeton 01
H37 Foto Aussen Obst Sichtbeton
H37 Foto Aussen MFH Obst Sichtbeton
H37 Foto Aussen Erschliessung Zugang Strasse 01
H37 Foto Aussen Erschliessung Zugang Strasse 02
H37 Foto Aussen MFH Garten 01
H37 Foto Aussen MFH Garten 03
H37 Foto Aussen Erschliessung 01
H37 Foto Aussen Materialisierung
H37 Foto Aussen REFH Einfahrt Frontal
H37 Foto Aussen REFH Eingang
H37 Foto Aussen Pavillon 02
H37 Foto Aussen Pavillon 01
H37 Foto Aussen Erschliessung 03
H37 Foto Aussen Erschliessung 02
H37 Foto Aussen MFH Eingang 01
H37 Foto Aussen MFH Eingang 02
H37 Foto Aussen MFH Eingang 03
H37 Foto Innen Treppenhaus 01
H37 Foto Innen Treppenhaus 04
H37 Foto Innen Treppenhaus 02
H37 Foto Innen Treppenhaus 05
H37 Foto Innen Küche 01
H37 Foto Innen Küche 02

Alle Bilder anzeigen

H37 HP Schwarzplan
H37 HP Grundriss Erdgeschoss
H37 HP Grundriss 1 Obergeschoss
H37 HP Grundriss 2 3 Obergeschoss
H37 HP Grundriss Attika
H37 HP Grundriss Untergeschoss
H37 HP Schnitt 1
H37 HP Schnitt 2
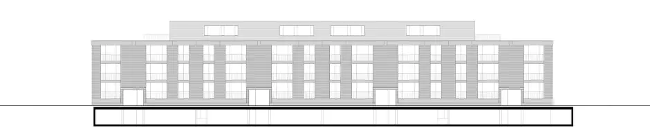
H37 HP Fassade Nord
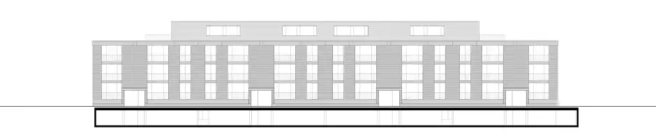
H37 HP MFH Fassade Ost
H37 HP REFH Fassade Ost
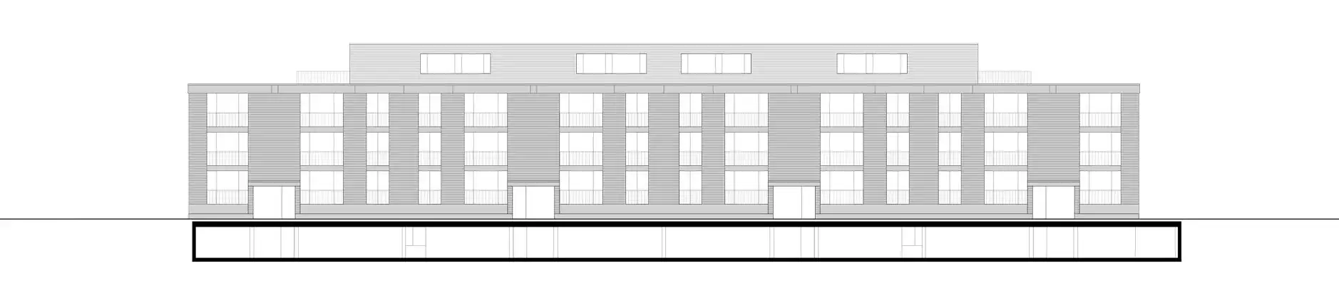
H37 HP Fassade Süd
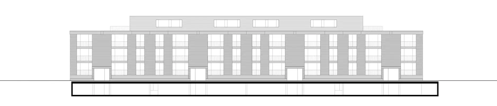
H37 HP MFH Fassade West
H37 HP REFH Fassade West

Alle Pläne anzeigen

Typ

Wohnen

Ort

Rupperswil

Auftraggeber

Privat

Fertigstellung

2024

Gebäudevolumen

22'109 m³

Hauptnutzfläche

3'637 m²

Fotograf

Felix Wey

Kopiert!