F04 Foto Aussen Nordostfassade

2013 | Wohnen

Überbauung Hagenhof | Beringen

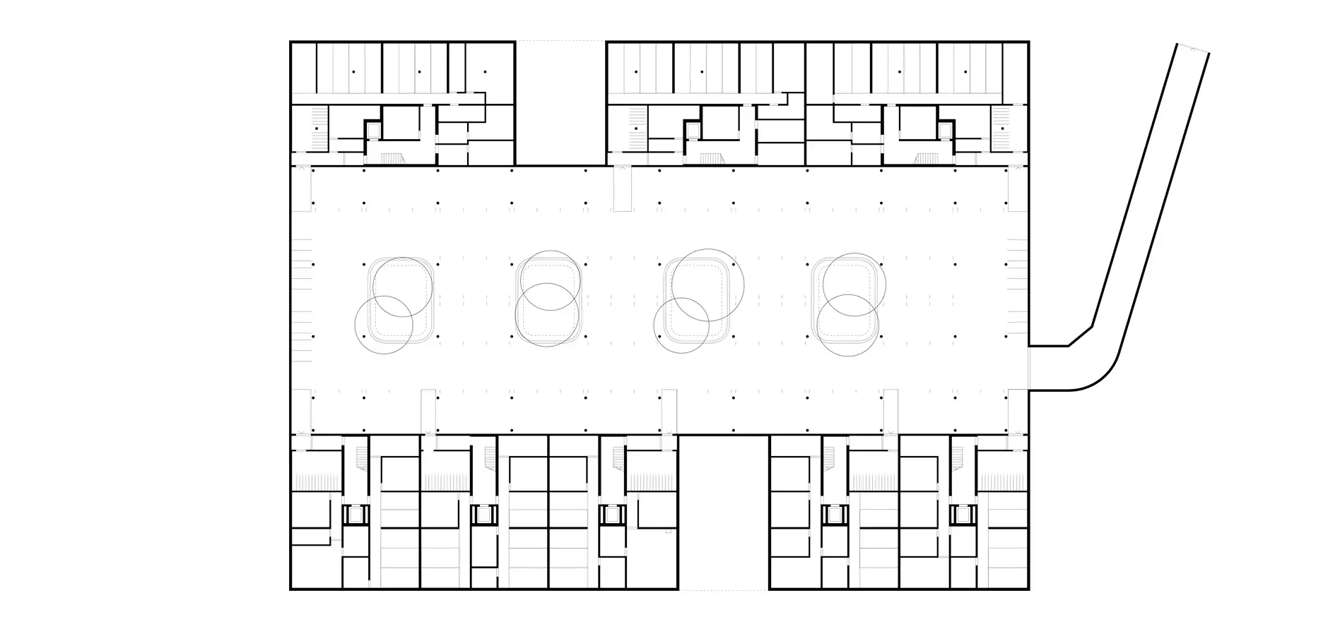
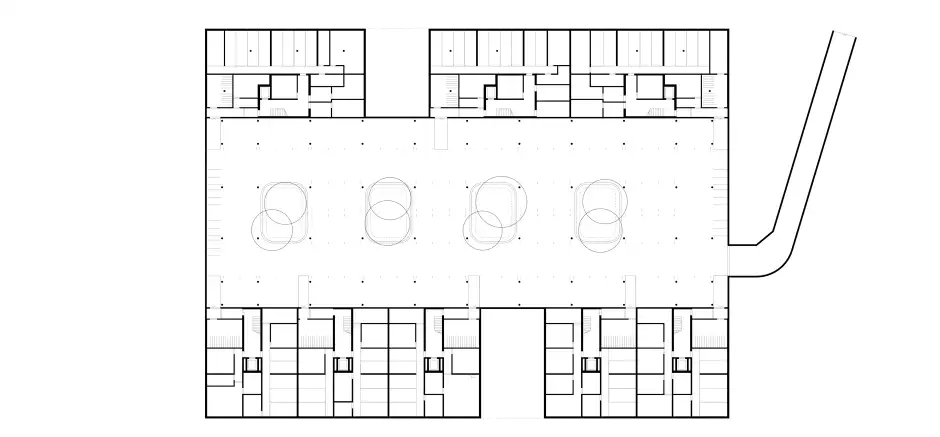
Das Grundstück befindet sich am Dorfeingang von Beringen, an der Schnittstelle zwischen Industriegebiet und einer Einfamilienhausstruktur. Die vorgeschlagene städtebauliche Struktur soll den Bewohnern eine ruhige Wohnoase, eine Insel, bieten. Die vier Baukörper sind Ost-West-orientiert und definieren klar das Baufeld, welches in einem neugepflanzten Hain aus Zitterpappeln ruht. Die entstehende Insel und die Bebauung werden leicht angehoben und gliedern das Areal in eine öffentliche Zone, die um die Überbauung fliesst und eine halböffentliche Zone in Form eines Hofes innerhalb der Baukörper. Ein differenziertes Wegenetz erschliesst die Häuser und verbindet sie mit der Schaffhauserstrasse einerseits und dem Hagenwiesenweg andererseits. Die Zufahrt zur zentral gelegenen Einstellhalle erfolgt über die Schaffhauserstrasse. Die Siedlung erhält ihren einzigartigen Charakter durch die verschiedenen Grundrisse, den introvertierten Innenhof, sowie durch die verglasten Terrassen entlang der Lärmzonen und ermöglicht eine sehr hohe Wohnqualität trotz der schwierigen Lage zwischen Kantonstrasse und Bahngleisen. Das Quartier erhält eine eigene unverwechselbare Identität.

Impressionen
Pläne
Kenndaten
F04 Foto Innen Einstellhalle 01
F04 Foto Innen Einstellhalle 02
F04 Foto Aussen Westfassade
F04 Foto Innen Küche
F04 HP Schwarzplan
F04 HP Grundriss Erdgeschoss
F04 HP Grundriss 1 bis2 Obergeschoss
F04 HP Grundriss Attika
F04 HP Grundriss Untergeschoss
F04 HP Querschnitt
F04 HP Längsschnitt
F04 HP Nordfassade
F04 HP Ostfassade
F04 HP Südfassade
F04 HP Westfassade

Alle Pläne anzeigen

Typ

Wohnen

Ort

Beringen

Auftraggeber

Rhomberg Bau AG

Fertigstellung

2013

Wettbewerb

1. Rang, 2010

Gebäudevolumen

38'584 m³

Hauptnutzfläche

2'348.9 m²

Kopiert!