G72 Visualisierung Aussen Sitzplatz

2017 | Wohnen

Überbauung Eichstrasse | Fislisbach

Das Gestaltungsplangebiet liegt an der Kreuzung der Birmenstorferstrasse und der Eichstrasse. Es handelt sich um eine Parzelle im Wohngebiet mit direktem Anschluss an eine Kantonsstrasse. Aus historischer Sicht entwickelte sich das Dorf entlang der Badenerstrasse.

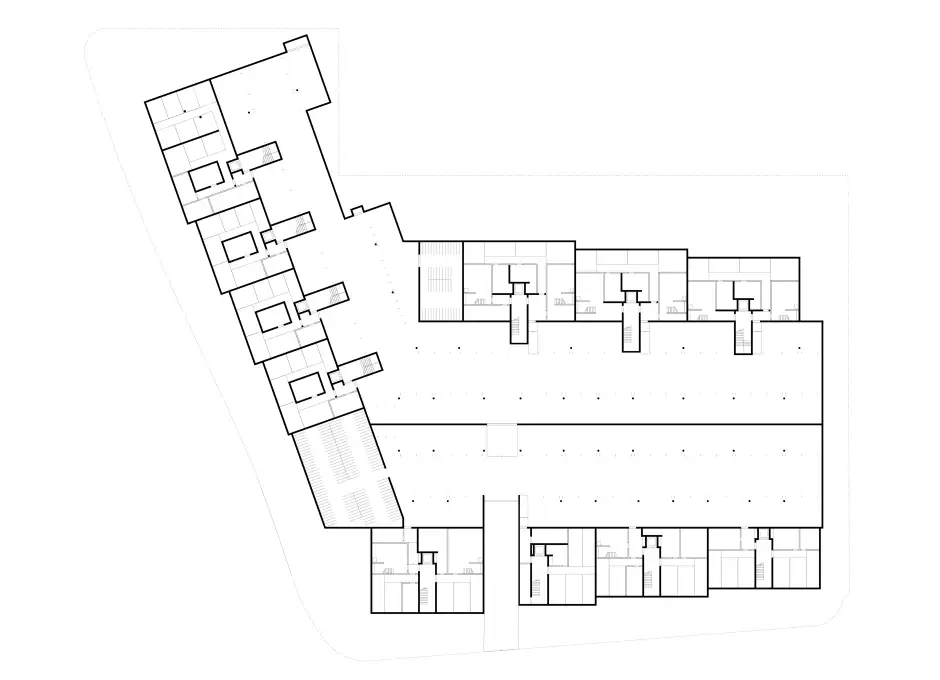
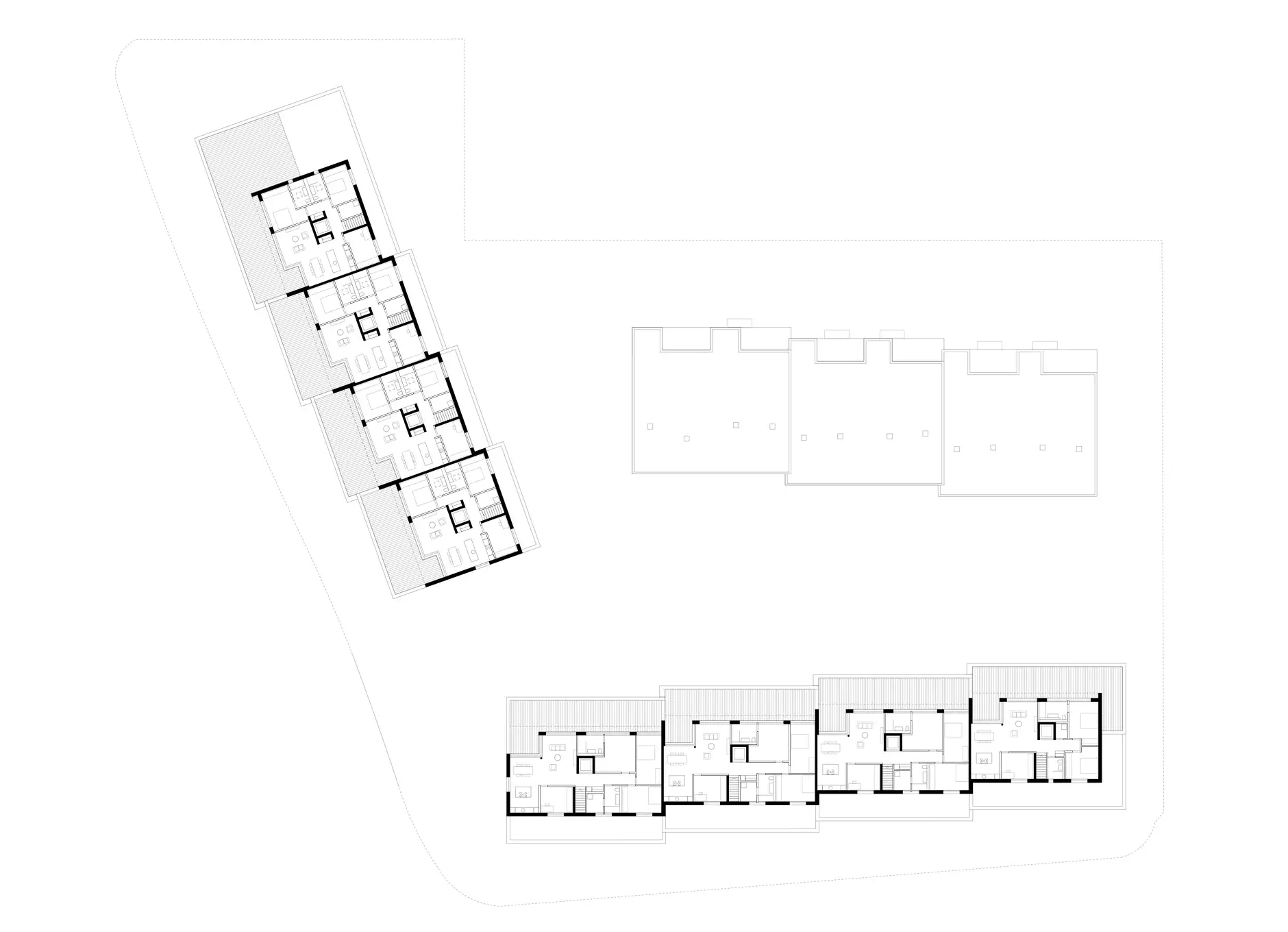
Der Entwurf schlägt entlang der Eichstrasse und der Birmenstorferstrasse zwei dreigeschossige Zeilenbauten vor und entlang dem Eschenweg eine zweigeschossige Zeilenbaute mit zurückversetztem drittem Geschoss. Um die grosse Volumetrie zu brechen, werden die Zeilen in einzelne Kuben aufgelöst und versetzt zueinander angeordnet. Aufgrund des leicht geneigten Terrains, werden die Häuser auch in der Höhe gestaffelt. So wird das einzelne Haus ablesbar und die gesamte Überbauung passt sich in ihrer Körnigkeit der Umgebung an. Durch die Anordnung von drei versetzten Zeilenbauten um den gemeinsamen Innenhof gleicht die Bebauungsstruktur der Typologie, welche man in der Nachbarschaft findet. Das Attikageschoss von den Häusern A und C ist auf den beiden Längsseiten von der Fassadenlinie zurückversetzt. Damit erscheinen die Häuser als dreigeschossige Bauten mit aufgesetztem Attika. Das nördlichst gelegene Attika auf Haus A ist zusätzlich von der Fassadenlinie zurückversetzt. 

Der Auftakt zur Siedlung erfolgt über einen Vorplatz direkt an der Birmenstorferstrasse. Von diesem öffentlichen Platz gelangt man in den halböffentlichen Innenhof. Durch die Staffelung der Häuser wird der Raum konisch verjüngt und es entsteht ein gefasster Hof. Die Gärten der Erdgeschosswohnungen werden als privater Aussenraum genutzt.

Das Haus an der Eichstrasse wird jeweils über das Trottoir erschlossen, die beiden anderen Häuser über den Innenhof. Die Einfahrt zur Tiefgarage erfolgt über die Eichstrasse und ist so platziert, dass der Verkehr ins Quartier möglichst gering gehalten werden kann.

Impressionen
Pläne
Kenndaten
G72 Visualisierung Aussen Wiese
G72 Foto Aussen Baustelle
G72 Foto Aussen Baustelle Balkone
G72 HP Schwarzplan
G72 HP Grundriss Erdgeschoss
G72 HP Grundriss 1 Obergeschoss
G72 HP Grundriss 2 Obergeschoss
G72 HP Grundriss Attika
G72 HP Grundriss Untergeschoss
G72 HP Querschnitt
G72 HP Haus A Längsschnitt
G72 HP Haus B Längsschnitt
G72 HP Haus C Längsschnitt
G72 HP Haus A Ostfassade
G72 HP Haus A Westfassade
G72 HP Haus B Ostfassade
G72 HP Haus B Westfassade
G72 HP Haus C Nordfassade
G72 HP Haus C Südfassade

Alle Pläne anzeigen

Typ

Wohnen

Ort

Fislisbach

Auftraggeber

Eglin Immobilien AG

Fertigstellung

2017

Gebäudevolumen

47'366 m³

Hauptnutzfläche

7’986 m²

Kopiert!