I36 HP Schwarzplan

2025 | Wohnen

ÜB Hauptstrasse | Unterentfelden

Impressionen
Pläne
Kenndaten
I36 Visualisierung Aussen Header
I36 HP Schwarzplan
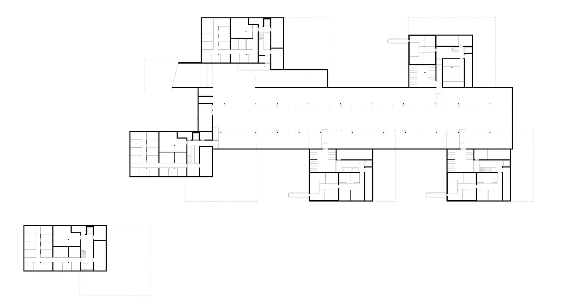
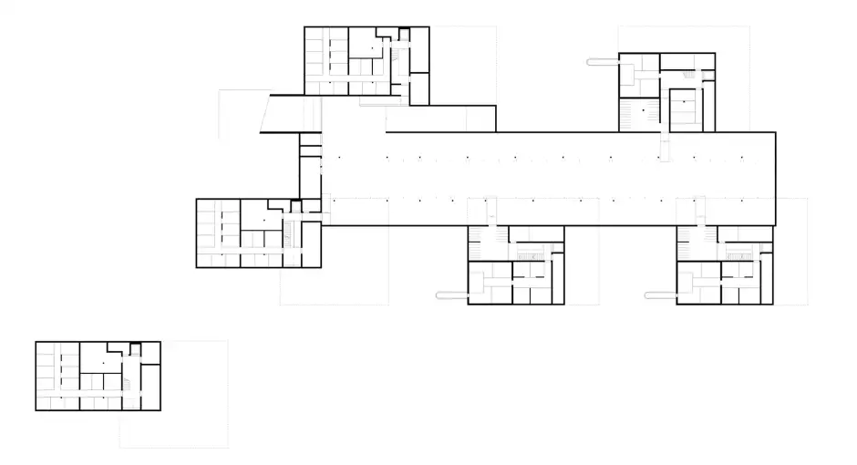
I36 HP Grundriss Erdgeschoss
I36 HP Grundriss 1 Obergeschoss
I36 HP Grundriss 2 Obergeschoss
I36 HP Grundriss 1 Untergeschoss
I36 HP Grundriss 2 Untergeschoss
I36 HP Querschnitte
I36 HP Längsschnitt
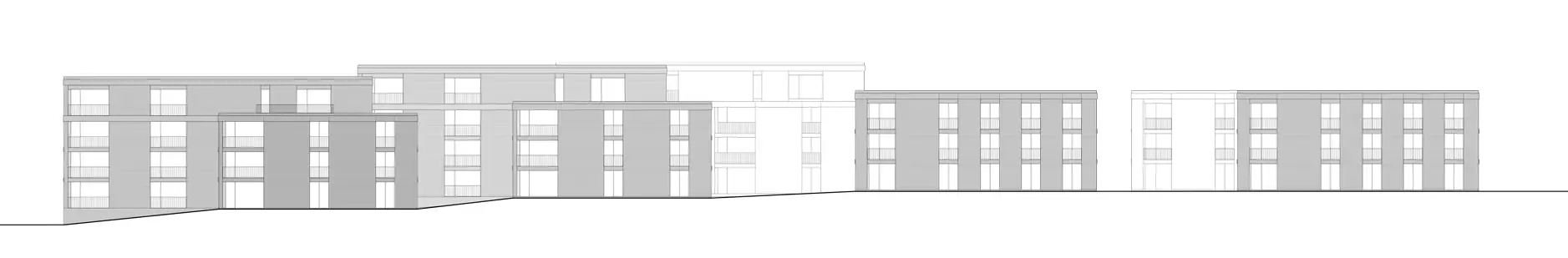
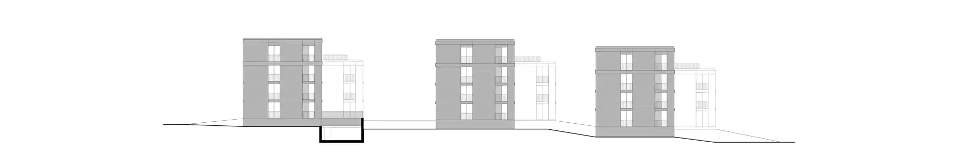
I36 HP Fassade Nordost
I36 HP Fassade Nordwest
I36 HP Fassade Südwest
I36 HP Fassade Südost

Alle Pläne anzeigen

Typ

Wohnen

Ort

Oberentfelden

Auftraggeber

Artemis Immobilien AG

Gebäudevolumen

37'724 m³

Kopiert!